Moderne kvalitetsbolig i Lille Skagen
Midt i det attraktive område Lille Skagen finder du denne moderne og indflytningsklare bolig på 148 m², opført i gode materialer og med en gennemtænkt planløsning. Her får du et hjem med plads til hele familien, beliggende perfekt mellem Skagen centrum og Gl. Skagen, tæt på både indkøb, fritidsaktiviteter og naturskønne omgivelser.
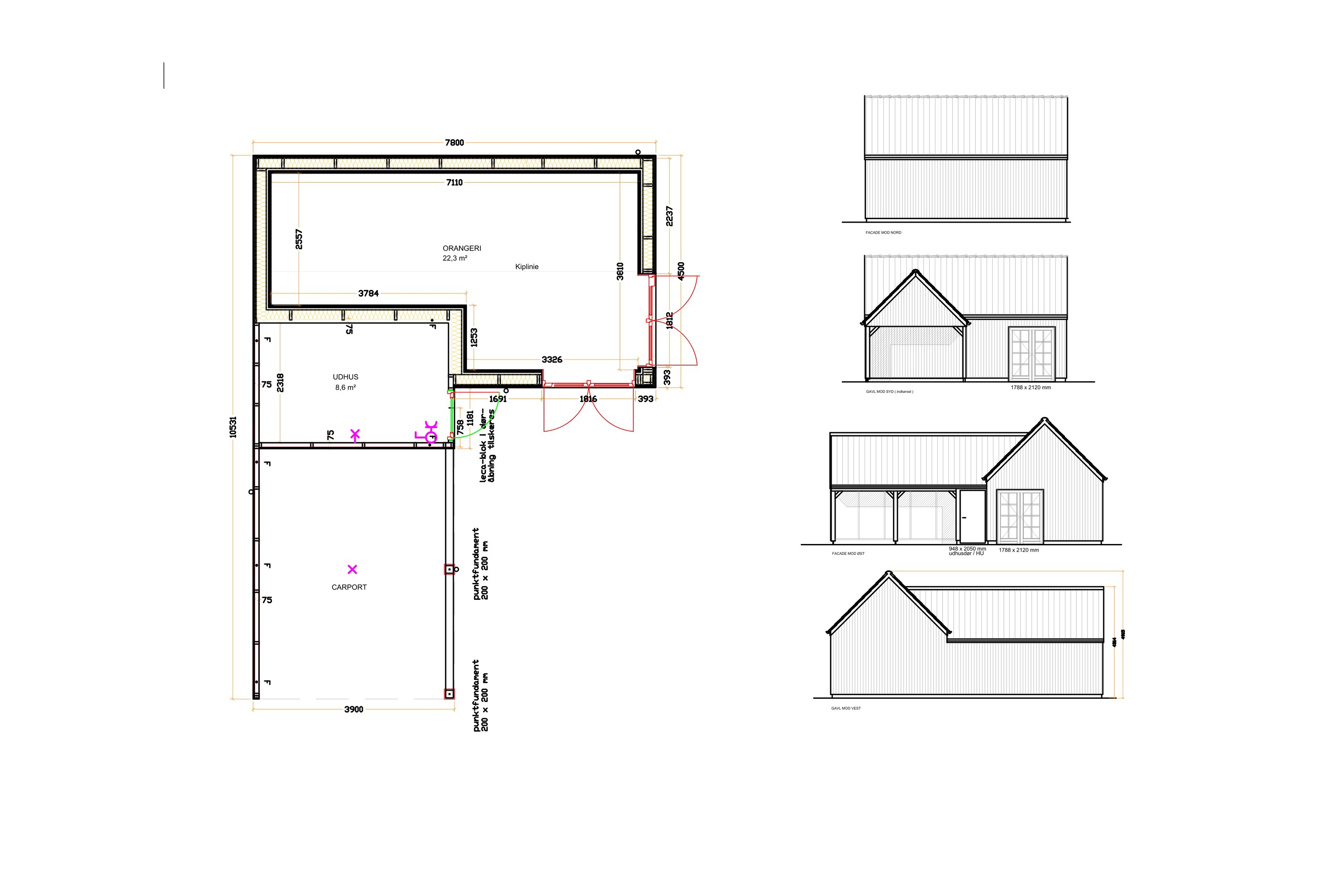
Boligen rummer tre rummelige soveværelser, to stilfulde badeværelser og et stort, åbent køkken-alrum, der fungerer som husets naturlige samlingspunkt. Køkkenet er moderne og veludstyret med god skabsplads, og i forlængelse heraf ligger spisepladsen og opholdsstuen med et flot lysindfald. Hele fire terrassedøre giver direkte adgang til en stor træterrasse, hvor ude- og indeliv smelter sammen på varme sommerdage.
Udenfor finder du et skønt uderum med flere solrige kroge, en rummelig carport, et udhus og et praktisk udhus. Bryggerset fungerer som et praktisk vaskerum med både vaskemaskine og tørretumbler. Overalt i boligen er der lyse, indbydende rum og et behageligt lysindfald, der skaber en imødekommende atmosfære.
Fra adressen er der kun få minutters gang til indkøbsmuligheder, Skagen Padelcenter, tennisbaner og de flotte stier i Skagen Klitplantage. Her bor du tæt på alt, men stadig med ro og privatliv i et eftertragtet kvarter.
Lille Skagen 62, 9990 Skagen
SKA0000534
- Kontantpris4975000
- TypeVilla
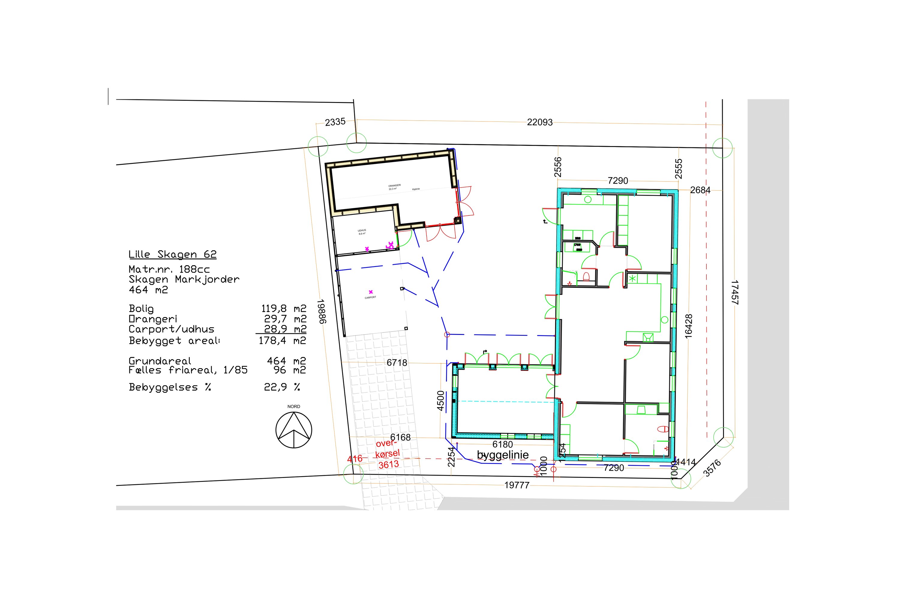
- Boligareal148
- Grundareal464
- Ejerudgift pr. md2177.33
- Rum7
- EnergimærkeA2015
- VarmekildeFjernvarme/blokvarme
- Byggeår2022
- Ombygget-
- Stuer2
- Værelser5
- Plan1
- Toiletter2
- Badeværelser2
- Tagetage-
- Kælder-
- Carport28
- Garage-
- Udhus-
- Udbetaling250000
- Brutto ekskl. ejerudgift26206
- Netto ekskl. ejerudgift21069
Yderligere information
Finansiering
Lille Skagen 62, 9990 Skagen
SKA0000534
Moderne kvalitetsbolig i Lille Skagen
Midt i det attraktive område Lille Skagen finder du denne moderne og indflytningsklare bolig på 148 m², opført i gode materialer og med en gennemtænkt planløsning. Her får du et hjem med plads til hele familien, beliggende perfekt mellem Skagen centrum og Gl. Skagen, tæt på både indkøb, fritidsaktiviteter og naturskønne omgivelser.
Boligen rummer tre rummelige soveværelser, to stilfulde badeværelser og et stort, åbent køkken-alrum, der fungerer som husets naturlige samlingspunkt. Køkkenet er moderne og veludstyret med god skabsplads, og i forlængelse heraf ligger spisepladsen og opholdsstuen med et flot lysindfald. Hele fire terrassedøre giver direkte adgang til en stor træterrasse, hvor ude- og indeliv smelter sammen på varme sommerdage.
Udenfor finder du et skønt uderum med flere solrige kroge, en rummelig carport, et udhus og et praktisk udhus. Bryggerset fungerer som et praktisk vaskerum med både vaskemaskine og tørretumbler. Overalt i boligen er der lyse, indbydende rum og et behageligt lysindfald, der skaber en imødekommende atmosfære.
Fra adressen er der kun få minutters gang til indkøbsmuligheder, Skagen Padelcenter, tennisbaner og de flotte stier i Skagen Klitplantage. Her bor du tæt på alt, men stadig med ro og privatliv i et eftertragtet kvarter.
- Kontantpris4975000
- TypeVilla
- Boligareal148
- Grundareal464
- Ejerudgift pr. md2177.33
- Rum7
- EnergimærkeA2015
- VarmekildeFjernvarme/blokvarme
- Byggeår2022
- Ombygget-
- Stuer2
- Værelser5
- Plan1
- Toiletter2
- Badeværelser2
- Tagetage-
- Kælder-
- Carport28
- Garage-
- Udhus-
- Udbetaling250000
- Brutto ekskl. ejerudgift26206
- Netto ekskl. ejerudgift21069
Yderligere information
Finansiering
SKAGENBOLIG
Forvent mere af din mægler i Skagen
Som uafhængig mægler kan vi tilbyde individuelle løsninger tilpasset den enkelte bolig, med en fleksibilitet som kæder har sværere ved at tilbyde.
Vores kvaliteter og evner ‘in-house’ gør det muligt, at reagere hurtigt og få sat boligen til salg i det tempo som passer dig bedst.
SkagenBolig
ejendomsmægler MDE
Lad os høre fra dig, hvis denne bolig har fanget din interesse?
Tlf: 61 10 99 90
