Fred og ro nær skov og skole
Drømmer I om at bygge jeres helt egen bolig?
Her får I en unik mulighed for at udleve jeres boligdrømme og bygge boligen efter jeres ønsker og behov. Byggegrunden er beliggende på en rolig og lukket vej i Ålbæk kun få meter fra byens velfungerende skole, fritidsaktiviteter og skov.
Ålbæk er en lille havneby; perfekt som pendler by, med Skagen, Frederikshavn og Hjørring indenfor kort køreafstand. Ålbæk kan udover den smukke natur og skønne badestrand ved Kattegat også tilbyde gode indkøbsmuligheder og offentligt transport.
Grundens størrelse er på 886 kvm, beliggende i byzone og er omfattet af Byplanvedtægt nr. 8 hvilket giver en mulighed for at bygge op til 202 kvm.
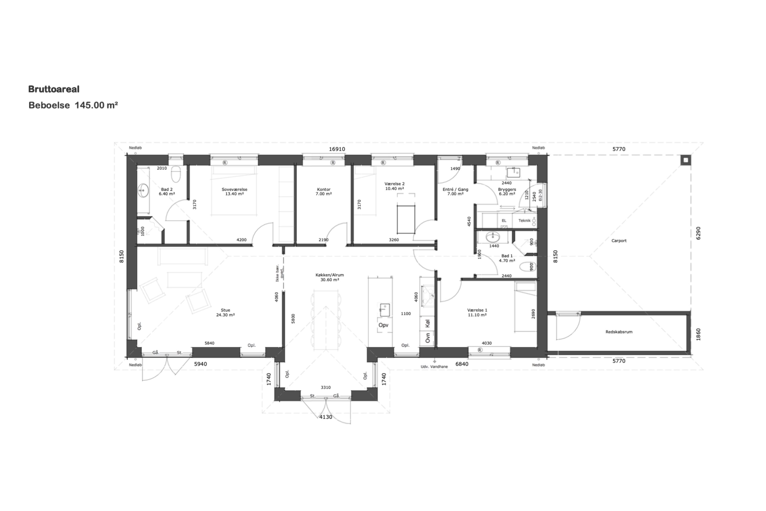
Bilederne i ser her på siden er et eksempel beregnet af Huscompagniet. 145 m2 boligarel til et samlet byggeri på 2.950.000 DKK inkl. grund, tilslutninger m.v.
Kontakt SkagenBolig for at høre mere om jeres muligheder.
Fred og ro nær skov og skole
Drømmer I om at bygge jeres helt egen bolig?
Her får I en unik mulighed for at udleve jeres boligdrømme og bygge boligen efter jeres ønsker og behov. Byggegrunden er beliggende på en rolig og lukket vej i Ålbæk kun få meter fra byens velfungerende skole, fritidsaktiviteter og skov.
Ålbæk er en lille havneby; perfekt som pendler by, med Skagen, Frederikshavn og Hjørring indenfor kort køreafstand. Ålbæk kan udover den smukke natur og skønne badestrand ved Kattegat også tilbyde gode indkøbsmuligheder og offentligt transport.
Grundens størrelse er på 886 kvm, beliggende i byzone og er omfattet af Byplanvedtægt nr. 8 hvilket giver en mulighed for at bygge op til 202 kvm.
Bilederne i ser her på siden er et eksempel beregnet af Huscompagniet. 145 m2 boligarel til et samlet byggeri på 2.950.000 DKK inkl. grund, tilslutninger m.v.
Kontakt SkagenBolig for at høre mere om jeres muligheder.
Havevej 4, 9982 Ålbæk
9990000028
- Kontantpris320000
- TypeHelårsgrund
- Grundareal886
- Udbetaling25000
- Brutto ekskl. ejerudgift1880
- Netto ekskl. ejerudgift1474
Finansiering
SKAGENBOLIG
Forvent mere af din mægler i Skagen
Som uafhængig mægler kan vi tilbyde individuelle løsninger tilpasset den enkelte bolig, med en fleksibilitet som kæder har sværere ved at tilbyde.
Vores kvaliteter og evner ‘in-house’ gør det muligt, at reagere hurtigt og få sat boligen til salg i det tempo som passer dig bedst.

